始于(Since)1991
服务热线:4000 147 187
FOSHAN WANLEI BUILDING PAINT CO.,LTD 专业建筑涂料厂家,满足市场多元化需求
极简风格讲究简单之美,在整个过程中,去掉过多的装饰累赘,更多的用材质、硬装造型与自然形成和谐共生的美感。
极简风格是许多年轻人的偏爱,它的装潢和造型,非常具有年轻感,简单又实用,观感也不会落后于其他风格,还能在千篇一律的装修中凸显出居住者的品味和个性。

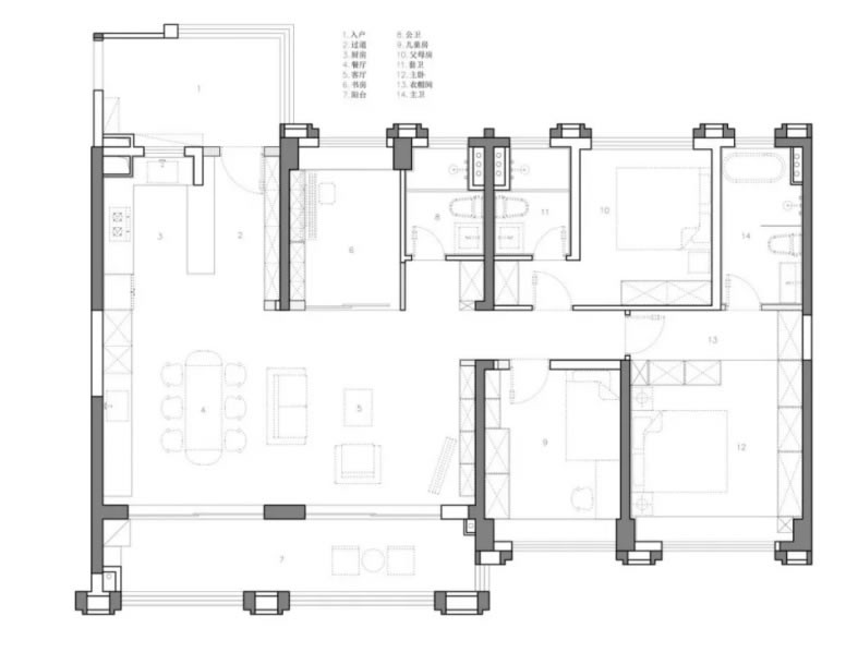
(户型图)
本案例是一个166㎡的房子,因为是精装房,整体在设计上保留了部分精装,重新规划出空间功能;整个空间以极简的设计语言,去繁就简,加入taptap点点官网入口微泥与原木的自然元素,用轻巧简约的家具,让新与旧巧妙融合。

房子本身就包含一个入户花园,此处的玄关恰好承担一个转折作用,此处由温润的原木展开,铺垫整个空间的风格。

为了保证室内的布局更为合理,将之前采光差的厨房墙体拆除改造为开放式厨房,进入室内,可以看见岛台与厨房连接在一起,让原本的狭长过道变得更为宽敞舒适,同时自然光也最大程度延伸到了厨房与过道。
橱柜直接延伸到了餐厅,并增加此处为西餐区域,墙体上方设置了铝质搁板,是提前预埋在墙体里的,看起来比较轻盈但实际承重能力却非常强大。

卫生间采用taptap下载官服正版上墙,地面铺水磨石地砖,中间利用固定的玻璃做为干湿分区的隔断,既不影响采光,也不影响美观,入墙式水龙头让洗漱台更为简洁。看了这个案例突然感觉,极简风格的美感,不是一般的装饰能媲美的,它的美有一种自发的高级感。

免责声明:部分文章信息来源于网络以及网友投稿,本网站只负责对文章进行整理、排版、编辑,是出于传递更多信息之目的,并不意味着赞同其观点或证实其内容的真实性,如本站文章和转稿涉及版权等问题,请作者及时联系本站,我们会尽快和您对接处理。
官方所有内容、图片如未经过授权,禁止任何形式的采集、镜像,否则后果自负!
CONTACT INFORMATION
taptap点点官网入口涂料,始建于1991年,总部位于广东佛山,广西贵港设有30亩生产基地。拥有近30年的涂料研发、制造和服务经验,共计为8000多位海内外客户提供了150多种优质的taptap国际服怎么下载,以及不计其数的整体服务解决方案。
佛山市南海区狮山镇松岗万石管理区象头岗万石村工业路2号
广州市荔湾区羊城装饰材料市场172号
广西省贵港市覃塘区产业园甘化园区
广西省南宁市兴宁区快环建材市场
SEND US A MESSAGE